2015-09-27
Szpital Miejski przeprojektowany!
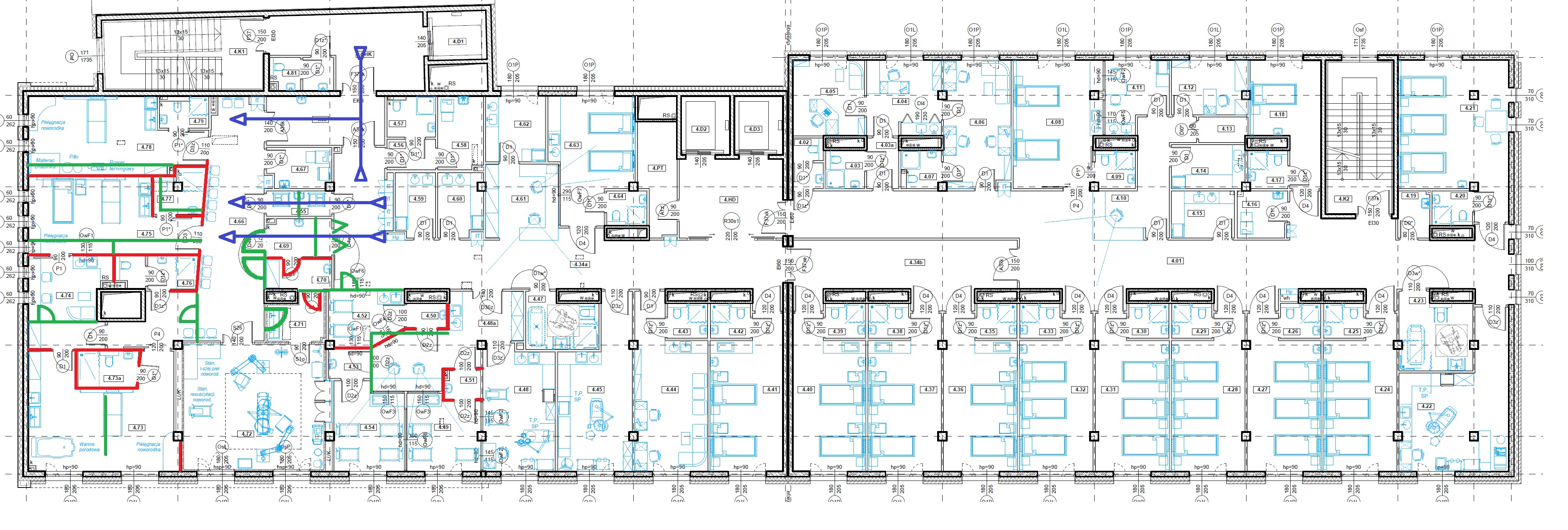
Szpital Miejski wymaga przeprojektowania i przebudowy – taką informację przekazaliśmy radnym podczas sesji Rady Miasta. Dlaczego? Projekt wg. którego powstaje nowy budynek nie spełnia oczekiwań ani lekarzy, ani pacjentów. Nawet autorzy projektu stwierdzili, że wymaga poprawek. Na tyle na ile było to możliwe na tym etapie inwestycji – przygotowaliśmy konkretne propozycje zmian, które możecie Państwo zobaczyć na zdjęciach. Co zmieniamy? Otóż najbardziej istotna zmiana to zamiana sal porodowych. Projekt, który opracowano w poprzedniej kadencji zakładał, że na jednej sali porodowej będą rodzić dwie panie oddzielone parawanem. Takie rozwiązanie, co prawda akceptowalne prawnie, to jednak nie spełnia dzisiejszych standardów. Trudno więc budować obiekt, który już w momencie otwarcia będzie…przestarzały. Po przeprojektowaniu sale porodowe będę trzy (zamiast dwóch), z toaletami i prysznicami (czego wcześniej również nie było). Udało się wprowadzić wannę porodową (której nie było), miejsce dla ćwiczeń dla kobiet oraz miejsce dla ojców oczekujących na poród. W każdej z sal porodowych wygospodarowano także miejsce, w którym można zająć się noworodkiem. Jestem przekonany, ze zmiany te spowodują, że “porodówka” będzie atrakcyjna dla przyszłych mam i pozwoli nam zwiększyć ilość porodów, które są świadczeniem nielimitowanym i stanowią przychód dla szpitala. Dzięki konsultacjom architektów z ordynatorami i pielęgniarkami oddziałowymi wprowadzono także szereg zamian ułatwiających i usprawniających pracę lekarzy na każdym piętrze nowego budynku. Dlaczego nie zrobiono tego od razu? Zespół opracowujący projekt twierdzi, że nie umożliwiono im konsultacji z personelem, a prezydent Korfanty osobiście forsował niektóre rozwiązania (z którymi nie zgadzali się projektanci). Nie zdziwiło mnie to specjalnie, bo jako radni nie mieliśmy dostępu do żadnych informacji dotyczących budowy szpitala. Dlatego radni byli pod wrażeniem szczegółowości omówienia tematu na sesji. Zdaniem byłego prezydenta zmiany są “kosmetyczne”.
Wszystkie zmiany wprowadzane na tak późnym etapie są konsultowane z architektami, branżystami i wykonawcą, aby nie miały wpływu na ostateczny termin wykonania prac. Niestety, z powodu ograniczeń czasowych niektórych pomysłów nie udało się już zrealizować, ale i tak myślę, że kiedy nadejdzie dzień otwarcia – radni, władze miasta, architekci, dyrekcja i personel szpitala, a przede wszystkim pacjenci – będą zadowoleni z nowoczesnego i spełniającego wszystkie standardy szpitala.
W moim odczuciu do tematu budowy Szpitala Miejskiego od początku zabrano się w zły sposób. Brak dyskusji na etapie opracowywania koncepcji, brak konsultacji z personelem i “utajnianie” podejmowanych działań nie służą wypracowywaniu najlepszych rozwiązań. Radny Dariusz Iskanin zwrócił uwagę także na tryb wprowadzenia tematu pod obrady Rady Miasta, który również budził zastrzeżenia i spowodował, że wówczas nie wszyscy radni poparli proponowaną przez prezydenta uchwałę. Doskonałym przykładem braku konsekwencji w realizacji tego projektu jest wniosek o dofinansowanie ze środków zewnętrznych, który zupełnie nie zgadza się z ostatecznie realizowanym projektem co spowodowało brak możliwości pozyskania pieniędzy na jego budowę.



Komentarze
Uwaga! Dyskusja jest moderowana raz dziennie (zwykle rano) - komentarze nie pojawiają się od razu w momencie publikacji. Komentarze nie związane z tematem posta, obraźliwe, wulgarne nie są publikowane. Jeśli nie widzisz swojego komentarza sprawdź MOJE ZASADY i REGULAMIN
to do Leśnej Góry…. polecam 😉
Uważam, że każdy pokój powinien być dwuosobowy na każdym oddziale. Żeby było komfortowo i przyjaźnie. I panować w nim powinna wysoka kultura osobista.
Nie podoba mi się zachowania niektórych pielęgniarek, że zachowują się skandalicznie wobec pacjentów. Mógłbym wskazać palcem, które ! Dotyczy to też lekarzy jak i statystów. Nie wiem co ten szpital przyjmuje jakiś znieczulicy ludzkich, lekarzy mające problemy psychologiczne ? Gdzie uśmiech, gdzie kultura, gdzie poszanowanie wobec pacjentów?
Druga sprawa, nie podoba mi się, że lekarze w obecności innych osób w pokoju w dniu wizyt, gdzie są po 8 -10 na sali, mówią o historii chorobie przy wszystkich głośno ! Czy każdy musi wiedzieć o tym ? Dla mnie takie sytuacje oznaczają to, iż lekarze łamią tajemnicę lekarską, bo mówi to nieuprawnionym stronom trzecim, gdzie powinni odpowiadać dyscyplinarnie.
Pozdrawiam
ja Wam kibicuje, jesteście w mieście na fali, ludzie Was chwalą, Wam dali władzę i nie zapominacie o ludziach co Was wybrali, jest i bydzie spoko, nie szata zdobi człowieka i bardzi od garnituru jest ważny stosunek do ludzi,
Wracam do tematu – Budowa dworca.
Kto tworzył zapisy do umowy z wykonawcą?, wystarczyło w zapisach umownych wpisać tzw “kamienienie milowe” tzn zakres robót jaki powinien być wykonany w danym terminie, jeśli wykonawca spóźnia się ze swojej winy z dotrzymaniem terminu wykonania przewidzianej części robót otrzymuje kary umowne, jeśli to nie skutkuje można zerwać kontrakt z winy wykonawcy, wraz z podpisaniem umowy powinno być wniesione zabezpieczenie należytego wykonania robót w formie pieniężnej lub gwarancji bankowych. Z tego co wiem to kierowniczka zamówień publicznych została z nadania poprzedniej ekipy (bez żadnej wiedzy, była zwykłą sekretarka) .
Te spektakularne urzędowe “kariery”, dobrze, że sprzątaczką nie była…
nie wiesz
raczej celowo kłamiesz
mgr po Akademii Ekonomicznej
Podobno była sekretarką na kopalni z-cy Korfantego z czasów jego I kadencji (Jacek , nie pamietam nazwiska).
mgr Ewa Grabiarz (z domu Czempiel, nie moja rodzina) Kierownik Biura Zamówień skończyła studia dzienne na Akademii Ekonomicznej w Katowicach pracowała wcześniej zajmując się podobnymi tematami na KWK Piekary.
Z nadania męża sprząta w domu 😉 chyba ?
Moja córka zauważyła tylko wczoraj w kościele że ma markową torebkę 😉
Kierowniczka w UM została bez konkursu
Panie Radny, wstydziłby się Pan takie rzeczy pisać! Widać że kieruje Wami nienawiść i zazdrość! Pana wpis pokazuje jakim jest Pan człowiekiem. Jeżeli takich mamy radnych to ja dziękuję. I co z tego że ma markową torebkę? To córka w swojej szafie nie ma nic markowego? To może jej Pan kupi i wówczas do kościoła będzie chodzić żeby się modlić, a nie lustrować co kto ma ubrane! WSTYD I JESZCZE RAZ WSTYD!!!!
🙂 Nie zrozumiał Pan mojego wpisu.
To był komentarz do poprzedniego wpisu ‘Obserwatora’
to była ironia!
Zna Pan to słowo? 😉
Panie Macieju jak Pan odpowie na to, że ta Pani została kierowniczką bez konkursu tylko po starej znajomości z Jackiem?
To Korfanty ogłaszał jakieś konkursy na stanowiska?
ZGK ZGM MDK szpital
i tak w ten sposób ta Pani będzie pracować aż do emerytury na ciepłej posadce
A co tam słychać w temacie nocnej komunikacji, wolnego nocnego handlu, stojaków rowerowych, których lokalizację wybieraliśmy ?
Wszystkiego na raz nie rozwiążemy. Na nocną komunikację trzeba wygospodarować środki finansowe – mam nadzieję, że będzie można temat “ruszyć” w przyszłym roku. Nocny handel to kwestia decyzji Rady Miasta, a stojaki rowerowe w realizacji etapowej – czyli sukcesywnie będą pojawiać się w kolejnych miejscach.
A konkretnie jakimiś terminami czy coś i gdzie one będą ostatecznie zlokalizowane ?
Na ostatniej Komisji Przedsiębiorczości i Innowacyjności Rynku Pracy, Przewodniczący T. Flodrowski poddał pod głosowanie, czy komisja będzie zajmowała się “sklepami całodobowymi”. Radni Flodrowski i Ciupińska byli za, przeciw natomiast Pan Zorychta, Korfanty, Papaja i A. Wymysło.
Także ciąg dalszy nastąpi…
Chciałbym zapytać gdzie byli radni jak robiono projekt szpitala który był do wglądu w poprzedniej kadencji dlaczego wtedy nie reagowali radni przecież doktor Iskanin pani Prezydent czy pan panie Krzysztofie wszyjscy w poprzedniej kadencji byliście radnymi dlaczego wtedy nie interwieniowaliście że szpital jest żle zprojektowany było by taniej.
Jak nie? Proszę odsłuchać nagrania z sesji i przejrzeć wyniki głosowania.
W takim razie skąd to odkrycie teraz?
No cóż, teraz mamy dostęp do pełnej dokumentacji, a przede wszystkim mieliśmy możliwość omówienia projektu z ordynatorami i personelem. Ich zastrzeżenia i uwagi weryfikowaliśmy korzystając z opinii ekspertów i pojawił się problem. Postaraliśmy się więc problem rozwiązać.
No cóż, taką mamy władzę.
Dostęp do dokumentacji projektowej był możliwy wcześniej /informacja publiczna czy coś takiego. prawda?/.
Kilka faktów z historii…
Ponieważ, pani Prezydent przekazała na ostatniej sesji RM ciekawe informacje dotyczące projektu szpitala oraz poinformowała, że projekt nie był konsultowany z pracownikami placówki, a były prezydent twierdzi coś innego, przypomnę kilka starych faktów.
Ogólną wizualizację szpitala zaprezentowano na XXVII sesji RM 25 kwietnia 2013 r. w której uczestniczyłem. Związane to było z projektem uchwały dotyczącym zaciągnięcia wielomilionowego kredytu przez miasto na tę inwestycję. Projekt wpłynął nagle pod obrady, co zaskoczyło radnych. O przegłosowanie wniosku i to wbrew prawu, na co zwrócił uwagę radny Gowarzewski, wniósł ówczesny przewodniczący rady Krzysztof Seweryn. Oczywiście, wniosek na życzenie prezydenta przegłosowano, mimo sprzeciwu opozycji argumentującej swą decyzję brakiem możliwości zapoznania się z dokumentami. Byłego prezydenta Korfantego mocno wówczas wspierali radni z Naszych Piekar, a w szczególności radny lekarz Marek Szewczyk oraz radna Gabriela Kossakowska. Radna Kossakowska stwierdziła wówczas, że dziwi się, że radny Turzański nie wie nic o planowanym projekcie, bo przecież Twoje Piekary o tym pisały. Skoro radna miała wówczas wiedzę o projekcie rodzi się pytanie dlaczego popierała rozwiązania nie przystające zupełnie do naszych czasów i oczekiwań pacjentów. Dzisiaj, kiedy na światło dzienne wypłynęły różne fakty nie zabiera głosu. Radny Gowarzewski pytał wówczas o koszty jednego metra kwadratowego, lecz niestety nikt nie potrafił odpowiedzieć na to pytanie. Na pytanie radnego ile kosztowała wizualizacja szpitala, pani prezes Wardzyk-Kulińska nie chciała odpowiedzieć, jednak radny był na tyle wytrwały, iż w końcu wywalczył odpowiedź. Usłyszeliśmy, że do 14 tys. euro. Co ciekawe, potem tą wizualizację zmieniono więc się rodzi pytanie, w jakim celu wydano te pieniądze. Również pani prezes PCM nie chciała odpowiedzieć na pytanie ile będzie kosztowało utrzymanie nowego budynku. Dopiero teraz, po upomnieniach jej ze strony pani Prezydent, padła odpowiedź z której wynika, że koszt utrzymania wyniesie 100 % więcej niż starego szpitala. Na pytanie radnych opozycji czy ta inwestycja nie zachwieje finansami szpitala, radny Tomasz Cisek odpowiedział, że spokojnie sobie damy radę, trzeba ryzykować. Jedną z rzeczowych wówczas wypowiedzi, była wypowiedź radnego Dariusza Iskania. W głosowaniu na projektem uchwały wstrzymał się od głosu.
Podobnie jak wówczas tak i dziś radni Naszych Piekar nie mieli żadnych pytań dotyczących budowy szpitala. Na uwagę zasługuje przypomnienie postawy radnego K.Seweryna, który wyraźnie zaznaczył, iż nie podoba mu się postawa pani prezes PCM unikającej odpowiedzi na zadawane pytania. Przypomniał, że to rada miasta decyduje o wydawaniu publicznych pieniędzy i radnym należą się wyjaśnienia jakichkolwiek ich wątpliwości.
Zastanawiające jest to, że radny lekarz M.Szewczyk w tak ważnej sprawie i bliskiej mu, nie ma nic do powiedzenia. Przed głosowaniami projektów uchwał opuścił obrady XIII sesji RM.
Anonim.
Czytam człowieka i smucę się.
Jest “gorszy” niż sam S. Korfanty.
Wierzy w pewne brednie bardziej niż On sam.
Brak merytoryki, brak wiedzy… Tylko ośli upór.
Czas na samodzielne myślenie i aby ułamek samodzielnego myślenia.
Do tego dużo więcej odwagi, bo ANONIM to tchórzostwo.
* zamiast “Czas na samodzielne myślenie i aby ułamek samodzielnego myślenia”, winno być:
Czas na samodzielne myślenie i aby ułamek obiektywności.
Krzychu widzę, że sobie ładnie komentarze piszesz, bo osoba z zewnątrz raczej przy moderacji i akceptacji komentarzy nie ma szans dokonać korekty w ciągu jedynie minuty.
Admin to raczej poprawiłby komentarz, a nie pisał drugi 😉
Wrzucony komentarz przy podpisaniu się widnieje jako “do akceptacji” czy jakoś podobnie.
To teraz pasuje, faktycznie 🙂
A dokładnie jaka firma wygrała przetarg PBrol czy PBrol II bo ta pierwsza jak widać jest w upadłości likwidacyjnej a druga założona w 2014r pod tym samym adresem już nie?
Druga wyodrębniła się z pierwszej. Pierwsza ogłasza upadłość, druga powstaje http://www.krs-online.com.pl/msig-4608-301613.html.
I tyle a może aż tyle.
Do Korfantego-chłopie odejdź dosyć krzywdy narobiłeś ludziom.
kiedy był przetarg na dworzec ?
Zainteresowanych budową dworca odsyłam do Monitora Sądowego i Gospodarczego nr 143/2015(4774)-Pozycja 11008.
Poz.11008. dot. Przedsiębiorstwa Wielobranżowego PBROL SA w UPADŁOŚCI LIKWIDACYJNEJ. To chyba wyjaśnia dlaczego prace tak się ślimaczą. Nie wyjaśnia natomiast dlaczego taka firma wygrała przetarg.
coś z tym dworcem nie gra 15 minut temu tam byłem jest zerwana tylko kostka a koparka stoi od tygodnia w tym samym miejscu przepraszam 5 metrów dalej
Nawet nie wiem jak to skomentować, bo wychodzi z tego że szpital który jest budowany od połowy 2014 roku był budowany źle. Nie wiem czyjej winy jest tutaj więcej – byłego Prezydenta, architektów czy ekipy budowlanej, ale to przeprojektowanie i przebudowa pewnie pochłoną jak sądzę trochę pieniędzy, przez co koszt wybudowania Szpitala na pewno wzrośnie. Ciekawe tylko kto poniesie odpowiedzialność za ten cały bałagan, bo zaczyna się to robić nawet nie śmieszne, ale żałosne jak wszystko w naszym kochanym kraju.
napisałem go jako popierający działania obecnych władz.
daremna gadka. Nic już nie zmieni tylko poróżni. Dajcie sobie spokój i róbcie dalej swoje. Co możnz poprawić to poprawiajcie tak żeby szpital zarabiał albo + – 0, to już będzie dobrze.
Tajemnice się z czegoś robi, gdy nie chce się by ktoś patrzył na ręce. Nie chce się patrzenia na ręce, gdy ma się coś do ukrycia. Szereg nieprawidłowości jakie ujrzały światło dzienne po zmianie steru Władzy podpowiadają mi, że może w tym nie być przypadku.
Chciałbym, że rzeczywiście dobrze rządzili i nic chodzi o garnitur Pana Prezydenta ale o konsekwencje jego działań. On nas reprezentuje i kto jego lekceważy ten lekceważy nas mieszkańców. Znowu odwołam się do nieszczęsnego przykładu naszego”dworca”. Pan Panie Prezydencie cieszy się, że po takim okresie prace ruszyły i zaczęto zrywać asfalt. A gdzie te wcześniej nie dotrzymane ze strony wykonawcy obietnice.Czy zdaje Pan sobie sprawę, że za “chwilę” będzie zima i “tak zaawansowane” prace zostaną przerwane lub będą prowadzone tak, że pożal się Boże. Jeżeli ten sam wykonawca ma wykonywać wiaty na dworcu tymczasowym /apropos dzisiaj już jesień/ to jestem pewien, że będziemy moknąć.Powie ktoś, że się czepiam ale ta sprawa to wizytówka naszego miasta a także pole do popisu dla naszych nowych władza. Pokaz ich skuteczności faktycznej.Niech to będzie “pokazówka” tego jak potrafią rozwiązywać problemy o wiele poważniejsze jak chociażby wspomniana wyżej budowa szpitala i inne.Nie pozwólmy aby jakiś niesolidny wykonawca lekceważył nas wszystkich tylko dlatego, że w ofercie dal najniższą cenę. To też są nasze pieniądze.
Tylko niestety, nie może Pan stwierdzić po tygodniu od rozpoczęciu prac, że wykonawca jest nierzetelny. Uważam, że powinien zacząć od razu po przekazaniu budowy, ale też nie mam narzędzi, żeby go do tego zmusić. Ilość monitów, spotkań w tej sprawie była nieprzyzwoita.
Pytanie jest o umowę. Jeśli jest oparta na FIDIC – można parę rzeczy wykonawcy narzucić. Jeśli nie – to powinna zawierać kary umowne za opóźnienia w stosunku do harmonogramu, włącznie z karą za nieprzedstawienie harmonogramu robót w terminie.
No i przypadku, w których wywalamy wykonawcę z budowy np. za nieprzystąpienie do prac pomimo wyznaczenia mu dodatkowego terminu. Owszem, powstaje wtedy problem, bo nowego wykonawcę możemy wprowadzić po kolejnym przetargu (co wiąże się z czasem), ale tak czasem jest lepiej.
Jeśli obecny wykonawca rzeczywiście jest w upadłości likwidacyjnej (jak ktoś tu pisał), to niestety nie wygląda zbyt różowo przyszłość jego wykonawstwa.
Jestem pewny, że Pan Prezydent załamuje ręce, że wykonawca nie zaczął od razu prac. Nie wierzył, ze zacznie w poniedziałek i rzeczywiście nie zaczął, ponieważ asfalt zaczęli zrywać dopiero w środę czy czwartek.
Nie jestem ekspertem z prawa zamówień publicznych, ale pracuje w firmie, której część działalności opiera się na wygrywaniu przetargów i ich realizacji (nie branża budowlana). Zdarzało się nam czasami rozpoczynać realizację zamówienia z opóźnieniem i tak naprawdę zamawiający nie miał żadnych możliwości aby nas zmusić do realizacji od razu. Mógł jedynie wysyłać monity i pisma wyrażając swoje zaniepokojenie, jeśli czas zwłoki wydłużał się. Moglibyśmy nawet zacząć miesiąc przed końcem terminu (projekty kilkumiesięczne), zrobić ekspresowo i tez byłoby dobrze jeśli zmieścilibyśmy się w terminie.
Urząd rozpisuje przetarg, wyłania wykonawcę i właściwie tyle. Oczywiście Urząd pomaga wykonawcy jeśli ten ma jakieś zapytania merytoryczne, wątpliwości, trzeba coś ustalić itp. Ewentualne działania prawne można rozpocząć gdy wykonawca nie wyrobi się w terminie. Zazwyczaj w specyfikacji przetargu i w samej umowie zapisane są kary umowne za każdy dzień zwłoki powyżej terminu 0,5% za każdy dzień opóźnienia. Jeśli wykonawca zrezygnuje kara chyba 10% kwoty za jaką wygrał. Zamawiający może również 3 krotnie wezwać wykonawcę do oddania zamówienia i wyznaczyć mu termin jeśli termin z umowy już minął, jeśli ten tego nie zrobi może zostać mu odebrane zamówienie. Nierzetelnego wykonawcę można także podać później do Sądu o wykluczenie z przetargów publicznych w ogóle jakichkolwiek na 3 lata.
Nie krytykujmy Prezydenta, ponieważ to podwykonawca jest winien a nie Prezydent. Nie ma już w internecie co prawda specyfikacji tego przetargu, ale jeśli zapisane są te kary i jeśli nawet wykonawca skończy dworzec później to można naliczyć mu kary (0,5% z 3.6mln, bo za tyle wygrali, za każdy dzień to niezła sumka do budżetu miasta).
Żałosna sytuacja…i ten niepoprawny optymizm w tytule: lepiej późno nic wcale… Ludzie obudźcie się!!!! Tu chodzi o poważne sprawy jak budowa szpitala i wydawanie ogromnych finansów miejskich na ten cel, a Pan z taką nieuzadanioną w tym przypadku,, lekkością ” pisze o kosmetycznych zmianach. Kto uniemożliwił personelowi kontakt z projektantem i wykonawcami? Na pewno nie były prezydent! To PANI PREZES WARDZYK!!!!!! Kolejna poważna sprawa którą spieprzyła!!!! Kto za to zapłaci???? Znowu za jej błędy płaci całe miasto. Dlaczego Pan tego nie widzi jak widzą to wszyscy z otoczenia Szpitala? Przecież ta kobieta nie nadaje się na to stanowisko od samego początku. Kiedy miasto rozliczy jej kosztochlonne zarządzanie? Tu nie chodzi o względy personalne ( choć nawiasem pisząc jest,, niewyjściowa ” 🙂 tylko o czysto merytoryczne. Ech Panie Prezydencie czas na poważne zarządzanie miastem. P.s. to dziwne będąc w urzędzie zobaczyć wiceprezydenta w japonkach i stroju rowerowym. Wiem ze ma Pan dużo luzu, ale to stanowisko zobowiązuje…
Jak Pan myśli, że prezes jakiejkolwiek spółki zrobi coś bez wiedzy i wbrew oczekiwaniu prezydenta… to obawiam się, że ma Pan błędne wyobrażenie o sytuacji. A jeśli nawet to nikt nie nadzorował największej inwestycji w mieście? Kilkadziesiąt milionów złotych bez kontroli?
ps. Ależ zobaczy mnie Pan jak przychodzę i wychodzę z UM. Zdecydowanie przyjeżdżając na rowerze nie będę gnał w garniturze. Przebieram się w gabinecie, proszę się nie martwić! Na masę rowerową służbowo w stroju rowerowym, na turniej piłkarski w dresie, na Dni Piekar na luzie, w biurze w garniturze. Pozdrawiam.
Tak jest,taka odpowiedz mi sie podoba a cooo
Tak trzymać. Czyli strój odpowiedni do miejsca
Brawo P. Krzysiu 🙂
Szkoda tylko że ci wieczni maruderzy i hejterzy (popularne teraz słowo) nigdy nie mają odwagi aby podpisać się pod swoimi wypocinami własnym imieniem. Anonimowo to każdy głupi potrafi za przeproszeniem Pierdoły Pociskać 🙂
załóż garniaka na rower to zadowolisz malkontentów 😉
ludzie litości…
On mo ani nie 3 km, więc w garniaku żaden problem, ani się nie opłaci przebierać.
Ale w japonkach na kole ? Chopie no weź 😛
Krzychu, a ja myślałem, że szpital projektował projektant, a nie prezydent Korfanty.
Ja też tak myślałem.
…. wgląd do projektu był>>>>>INFORMACJA PUBLICZNA. I nagle odkrycie, że zaprojektowano nam “przestarzałe” rozwiązania? To jaki jest projekt to nie tylko sprawa Inwestora. Projektant bardzo dużo może, jeśli tylko chce ma determinację i widzi w wzleceniu nie tylko stronę finansową ale projekt i realizację ale przede wszystkim człowieka-użytkownika.
Kolejny zły przykład architektury, urbanistyki i planistyki, niestety już nie do poprawienia, to nasz jak to niektórzy mówią “ryneczek” w Szarleju. Jedynym miejscem gdzie można było zrealizować z sukcesem taki pomysł “ryneczku” to obecny teren Polo Marketu przy Wyszyńskiego. Wiem teren prywatny zaraz ktoś powie. Tak ,wymagało by to więcej przysłowiowego zachodu niż tylko danie zlecenia na wykonanie koncepcji i projektu. Realizacja miejsca publicznego w takim trybie “szok”. Połączenie placu, ryneczku jak to kto zwał tak zwał z ulicą Wyszyńskiego dało by realną korzyść Naszej przestrzeni. A gdzie w tym była nasza Gminna komisja urbanistyczno-architektoniczna. Dlaczego nie ma w niej osób z Naszego miasta. Brak jest osób które chętnie włączyły by się realnie w prace przy znajomości tematyki i co najważniejsze Naszego miasta? Jaki był tryb wyboru członków? /pytania retoryczne/. Nie chodzi mi o powołanie bo wiem, Zarządzenie. No cóż jak wygląda Nasza przestrzeń Wszyscy widzimy i co najlepsze uczestniczymy w niej. To również kształtuje Nas i Nasze dzieci, wnuki itd. A takie miejsca przekażą informację kolejnym pokoleniom kto tu rządził, mieszkał i tworzył.
Pozdrawiam
Dzięki za ten komentarz. Otwiera oczy na pewne sprawy, o których zazwyczaj się nie myśli. Niestety, ludzie, którzy o tym myśleć powinni – też tych spraw nie widzą, nie pilnują…
A rzeczywiście, wystarczy popatrzeć po zabudowach z dawnych lat: Giszowiec, Nikiszowiec, inne przemysłówki, czy choćby Tychy (część). Widać, że ktoś to przemyślał, zaplanował i nie tylko aby wycisnąć jak najwięcej z metra kwadratowego, ale żeby to służyło ludziom…
pozdrawiam
co z budową dworca?
Prace trwają. Dziś zrywają asfalt.
jakiś żart 15 minut temu tam byłem zerwana jest tylko kostka a koparka od tygodnia stoi w tym samym miejscu przepraszam 5 metrów dalej
ŚMIESZNI JESTEŚCIE!
brak argumentów dla Twojej wypowiedzi
Sam jesteś śmieszny, Korfanty powinien bezwzględnie odejść z lokalnej polityki na zawsze a nie jeszcze mieć czelność komentować sprawy szpitala. Dobrze ze Krzychu ze Sławą rządzą tym miastem, widać już efekty.
Brawo Panie Turzański i Pani prezydent
Jakie efekty? Takie, że Pani Sława i Pan Krzysiu chcą żebyśmy płacili więcej za śmieci? Takie, że Radiu Piekary spadła słuchalności po rewolucyjnych zmianach? A co do tematu to Panie Turzanski, przypomnę Panu, że w kwestii szpitala to Pańska wiedza i doświadczenie nie powala z kolan. Korfanty był dyrektorem CLO, a Pan poza pisaniem gazety to zbyt bogatego CV nie ma, zresztą podobnie jak miłościwie panująca Pani Sława. Także dozylismy niestety czasów kiedy politolodzy pouczaja ludzi z branży.
Tak, specjalista od szpitali startował w konkursie w Siemianowicach, ciekawe dlaczego go nie chcieli skoro taki dobry. I jak to się stało, że zaprojektowano taką wspaniałą porodówkę w Piekarach? I dlaczego trzeba było dla niego tworzyć sztuczne miejsce pracy?
http://katowice24.info/byly-prezydent-piekar-znalazl-prace-u-prezydent-zabrza/
Powiedz mi jakim trzeba być mało kumatym gościem żeby myśleć, że szpital projektował prezydent, a nie projektant?
Oj, zdziwiłby się Pan jakie historie opowiadają projektanci, urzędnicy i wszystkie osoby, które współpracowały przy tym projekcie…
Oczywiście, że szpital, podobnie jak i inne inwestycje – obiekty projektował projektant. Ale, jak wiadomo inwestor ma decydujący wpływ na projekt. Jest inwestor, który wychodzi na przeciw oczekiwaniom mieszkańcom, czyli tych dla których jest coś tworzone i odwrotnie.
W tym wypadku z relacji różnych osób wynika, że to były prezydent narzucał swoją wizję. Przykładem jest “betoniarnia” Mamlas Plac. Sam rozmawiałem z urzędnikami z UM i pytałem dlaczego to, czy tamo, jest źle zrobione. Odpowiedź zawsze była ta sama – cztery grosze byłego prezydenta. Tylko te grosze…wszystko zmieniały.
I to zupełnie nie w jego dziedzinie, masakra, bo jakie on ma pojecie o drogach.
Argument po wuju zważywszy, że to konkursy tylko z nazwy.
Jakie efekty od 10 grudnia (zaprzysiężenie) ? Proszę:
1. Działania naprawcze w ZGM – audyt, reprymenda dla pracowników
2. Kino Zacisze
3. Imprezy dla rowerzystów (masa krytyczna, tour de piekary, dyskusja o ścieżkach rowerowych)
4. Budowa Dworca
5. Nazwijmy to: korekta przy budowie Szpitala (obecny temat)
6. Plac zabaw Nivea – społeczne poruszenie zainicjowane przez Vice, które zaowocowało placem
7. Plan naprawy Radia Piekary (wywalenie starej ekipy, upgrade techniczny, inne działania naprawcze)
8. Siłowe załatwienie sprawy z nielegalnym składowaniem opadów (24h Straż Miejska)
9. Przetargi na zjazdy mężczyzn i kobiet (miasto wychodzi na pielgrzymkach na zero, wcześniej dopłacało), na dni miasta również.
10. Zainteresowanie miasta przy problemach Arrady – docelowo wykup mieszkań przez miasto
11. Przywrócenie 185 do Bytomia
12. Mniejsze wypłaty dla władz miasta, prezesów spółek i rad nadzorczych, jeden zastępca prezydenta (zawsze było dwóch)
13. Remonty najgorszych klatek przez skazanych
14. Remont chodnika wokół Manhattanu
15. Szansa na wycofanie się z projektu płatnego parkowania
16. Interwencja u Marszałka w sprawie CO (chęć ocieplenia całego starego osiedla i podłączenie CO niemożliwa z powodu decyzji Marszałka o wkluczeniu Wspólnot z finansowania)
Tour de PIekary – to gwoli ścisłości była trzecia edycja, to nie jest inicjatywa nowych władz. Ale reszta – jak najbardziej się zgadzam.
4 – Budowa dworca jak i budowa szpitala jest to pomysł przeprowadzony od początku do prawie samego końca przez Korfantego (obydwa zadania zostały wpisane do budżetu), także jeżeli uważasz to za plus to schlebiasz byłemu prezydentowi
5 – a skąd wiesz, że wprowadzone zmiany są słuszne? Korfanty działanie szpitala zna z autopsji, a Turzański możliwe, że jedynie z Na dobre i na złe.
7 – na razie plan naprawczy spodziewanych zmian nie przynosi – Radio Piekary po wprowadzeniu zmian straciło na słuchalności w porównaniu z poprzednim okresem. W całe przedsięwzięcie wpompowano mnóstwo kasy, a efektów brak, jedynie co się zmieniło to jakość muzyki – niestety na minus.
8 – na razie sprawa wygląda w porządku dopóki właściciel terenu nie będzie domagał się odszkodowania za uniemożliwienie działań. Wyrok w takiej sprawie może być bardzo surowy. Inną sprawą jest fakt, że ktoś te odpady będzie musiał w najbliższym czasie usunąć. Znając życie ten obowiązek spadnie na miasto.
10 – i co z tego zainteresowania wynika? Na całe szczęście do wykupu nie doszło i mam nadzieję nie dojdzie, bo byłaby to katastrofa finansowa dla miasta.
12 – Sława Umińska wcale nie ma mniejszej podstawy wynagrodzenia od poprzednika. Jej mniejsze wynagrodzenie wynika z krótszego stażu pracy, typowa manipulacja, która została już kilkakrotnie wyjaśniana. A dlaczego nie napiszesz o wynagrodzeniach i fuchach dla “dobrych znajomych” – prezesa Ekoparku i specjalisty Sokoły?
13, 14 – faktycznie plus, ponieważ za Korfantego w mieście nie przeprowadzało się remontów.
2, 9 – zgoda, to są sukcesy, ale nie oszukujmy się to są mało istotne sprawy. Delikatnym nietaktem jest fakt, że 50 tys. miasto szczyci się, że ma półamatorskie kino.
3, 15, 16 – to są bezy urazy – takie pierdoły, że szkoda czasu, aby to komentować.
Dworzec – prezydent to miał pomysł na wizualizację. Nie, nie było dworca w budżecie. Niestety, były prezydent lubił robić wizualizacje, gorzej było z realizacją.
Szpital – może to i dobrze, że z Na dobre i na złe. Tam kobiety nie rodziły na jednej sali oddzielone parawanem… 😉
Radio Piekary – odsyłam do wyników badań: http://piekary.krzysztofturzanski.pl/wp-content/uploads/2015/09/badanie-1.png
Wysypisko – oczywiście można było temat zostawić tak jak przez ostatnie lata
Arrada – wykup będzie i nie skończy się katastrofą dla miasta
Wynagrodzenia – nie ma nikogo kto zarabiałby więcej niż poprzednik, o oszczędnościach pisałem szeroko; I jakby tego nie liczyć Sława też zarabia mniej niż Stanisław.
Kino – lepsze “półamatorskie” niż żadne, a poza tym to tylko etap przed cyfryzacją. Dla wielu dzieciaków ma ono jednak już teraz ogromne znaczenie
A życie składa się z małych rzeczy, czasami pierdół, które składają się na pełny obraz 🙂
Postaramy się oczywiście działać jeszcze lepiej, skuteczniej i w taki sposób, aby Państwo byli zadowoleni.
Z tego co słyszałem to dworzec był wstępnie wpisany do budżetu na rok 2015, ale widocznie nie był. Ok, to w takim razie skąd wzięliście pieniądze na realizację tego projektu? Czyżby z tych 20 mln wolnych środków?
A ja odsyłam do tych wyników badań za konkretne okresy czasu, a nie do tabelki, którą każdy może sobie zrobić w excelu : http://www.wirtualnemedia.pl/artykul/rmf-fm-nokautuje-w-aglomeracji-slaskiej-radio-fest-z-duzym-spadkiem
Wyraźnie widać, że od momentu rewolucji widoczny jest spadek o 0,9% 🙂
Panie Turzański, już Pan zapomniał, że w 2010 roku stawał Pan w obronie firmy MIR? 😉
Czytanie ze zrozumieniem – Sława zarabia mniej niż Stanisław, ale ze względu tylko i wyłącznie na wysługę lat. Nie wszyscy ludzie są ciemni tak jak Pan myśli.
No cóż… pozostaje nam poczekać i oceniać wszystko z perspektywy czasu. Wrócimy do tematu pod koniec roku 🙂 Będzie czas na podsumowanie 12 miesięcy naszej pracy i jej efektów.
“5 – a skąd wiesz, że wprowadzone zmiany są słuszne? Korfanty działanie szpitala zna z autopsji, a Turzański możliwe, że jedynie z Na dobre i na złe.”
Jeżeli uważasz, że toaleta zgodnie z pomysłem S.Korfantego powinna być na korytarzu, a sala porodowa powinna być wspólna dla dwóch pacjentek – to gratuluję. Ja nie jestem specjalistą ale słyszałem wypowiedzi lekarzy z naszego miasta w tej sprawie. Moim zdaniem mają zdecydowanie większą wiedzę niż były prezydent. Jeżeli obecnie są wprowadzane korekty w projekcie szpitala, to przyczyniły się do tego uwagi ordynatora i personelu.
Generalnie zapraszam na sesje i komisje – czarno na białym.
Pani Prezydent i Pan Turzanski robia tylko cos dla znajomych na ulicy Ludygi jest bl nr 4 ktory jest starszy od bloku nr 2 i tam robia ocieplenie bloku najpierw a wiecie dlaczego bo tam dostal jakis pan co pracuje na prezydium a jego zona pracuje w policji i nie mowcie mi ze to tez nie zaczyna smierdziec znajomosciami ja bylam za Korfantym i nadal jestem a teraz jest nowa sitwa i uchron nas Boze jak oni ………….